Log in to access exclusive content, membership benefits and update your details. You can find your RIBA Membership number on your membership card.
Not a member? Join the RIBA
Don't have a login? Create a web account
West Oxfordshire

Alteration to existing property, Listed Building - Grade II, Sited in AONB, Within a Conservation Area
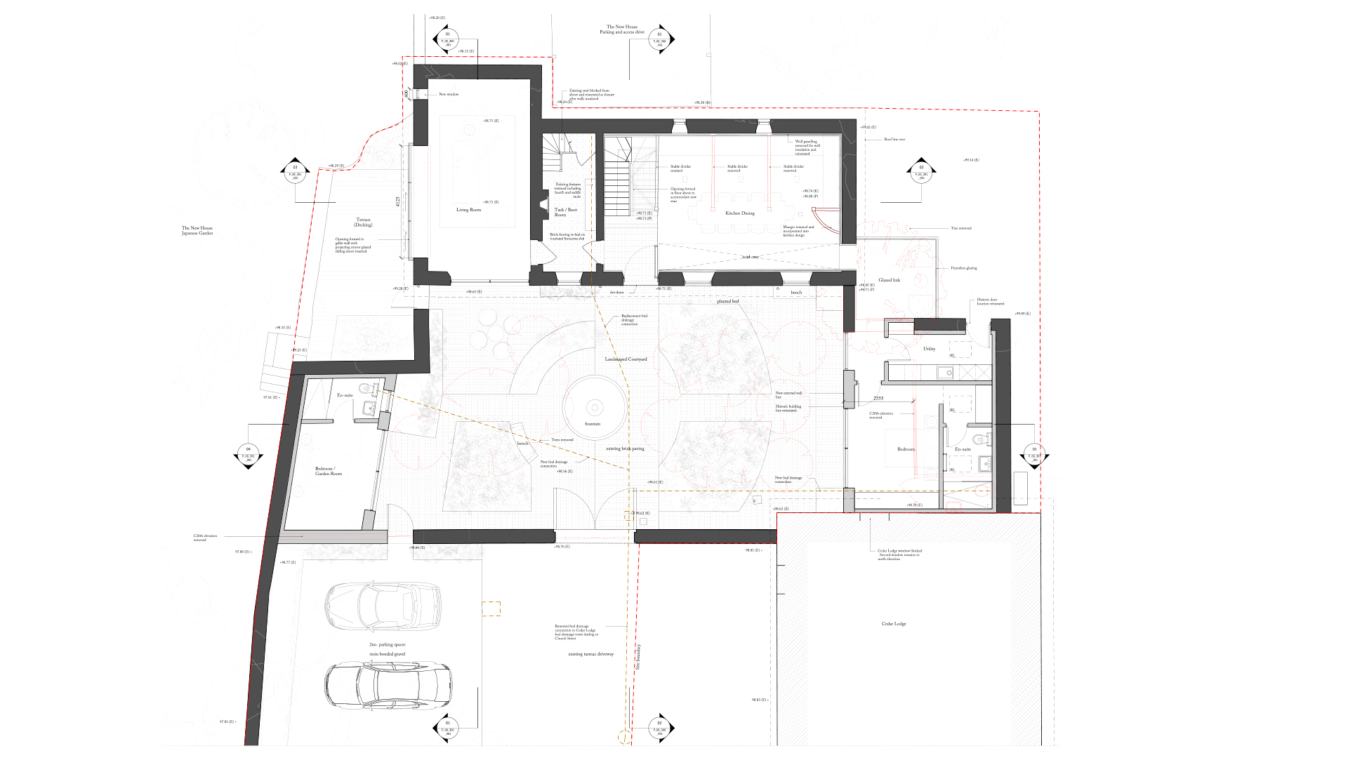
Cedar Lodge Stables, Shipton-under-Wychwood, West Oxfordshire - Grade II curtilage listed former stables building with walled courtyard; ancillary to Grade II Listed former Vicarage - The stables also borders the Grade II* listed 1960's 'New House' by Stout and Litchfield Architects which is set within a listed Japanese garden - Conversion to residentail use includes some small carefully considered single storey extensions and interior alterations to the stables. - Preparation of courtyard landscape scheme - Pre-Application meetings held with Historic England and West Oxfordshire District Council Conservation officer prior to plannign submission - Negotiation required with conservation officer on design elements inclulding the removal of two stables dividers and replacement of a proportion of the existing worn brick flooring with new. - Colledge Architects liaised with the client to develop the brief and design proposals, assisted in obtaining all relevant surveys and prepared a listed building and planning application which included a heritage statement (statement of significance and heritage impact asessment). - Planning submitted Dec 2024 and due for determination March 2025