Log in to access exclusive content, membership benefits and update your details. You can find your RIBA Membership number on your membership card.
Not a member? Join the RIBA
Don't have a login? Create a web account
Kensington and Chelsea

£0.5m to £0.99M
Within a Conservation Area
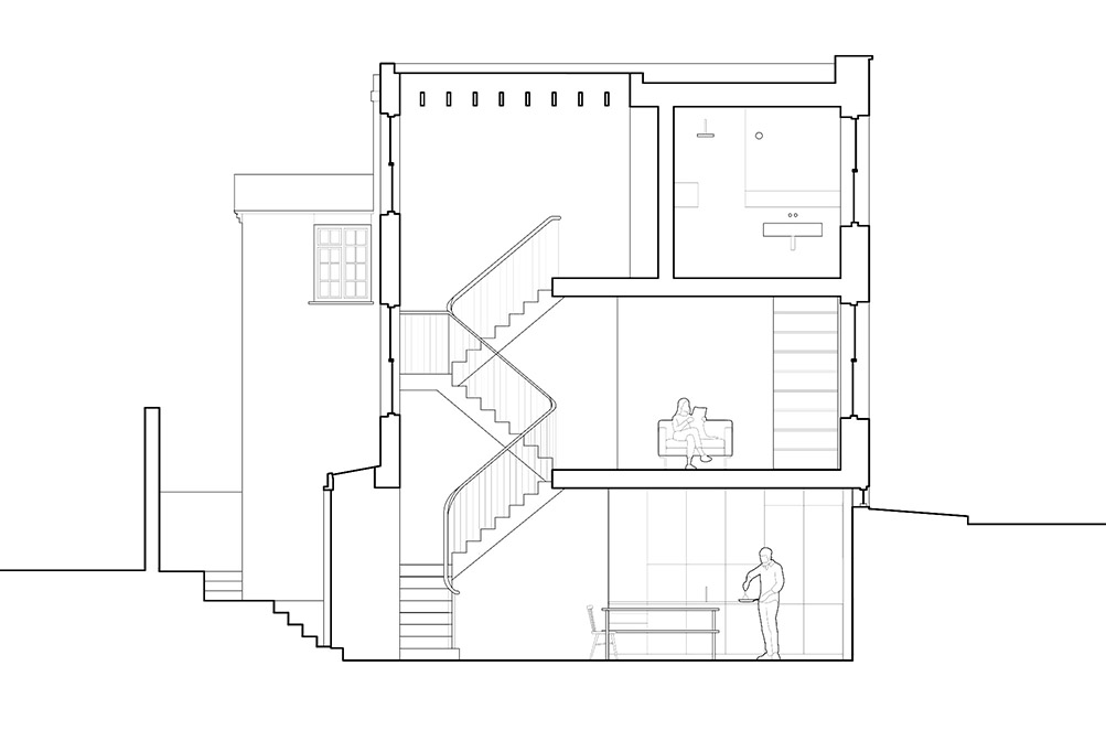
Rebuilding a compact mews house in Chelsea, London, turning a series of dark and cramped spaces into a luminous and spacious home. Our client initially commissioned Bindloss Dawes to create a more spacious kitchen and living area on the lower ground floor, and improve the relationship between the garden and the house. As the design phase progressed, our scope was extended to the entire home, resulting in a more holistic design throughout the property. The Chelsea Mews House is trapezoidal plan, with angular walls and junctions providing a challenging layout to reorganise. Working with the planning constraints of the Conservation Area - which is located in the Royal Borough of Kensington and Chelsea - we achieved an elegant outcome, first by dropping the lower ground floor by 50cm. The newfound generous volume at the lower level is accentuated by the addition of a full height void at the rear of the home, which draws in soft overhead light deep into the basement. A new custom oak and steel stair facilitates longitudinal movement through the void by creating an engaging journey from one level to another – with the oak timber balustrade and treads inviting touch as one ascends to upper floors. The interior of the mews is simple and elegant, successfully balancing the flow of generous and confined spaces. The homeowner, a talented craftsman and metalworker, personally designed and created the lighting fixtures, adding a personal touch to their London pierre-de-terre. The overall thermal performance too has been improved, with the upgrade from single to double glazing and implementing full insulation throughout the home.