Log in to access exclusive content, membership benefits and update your details. You can find your RIBA Membership number on your membership card.
Not a member? Join the RIBA
Don't have a login? Create a web account
South Ribble

£250,000 to £499,999
New Build, Sited in Greenbelt land
Unit 17 Guest House Farm , Runshaw Lane , Euxton , Chorley , Lancashire , PR7 6HD , United Kingdom
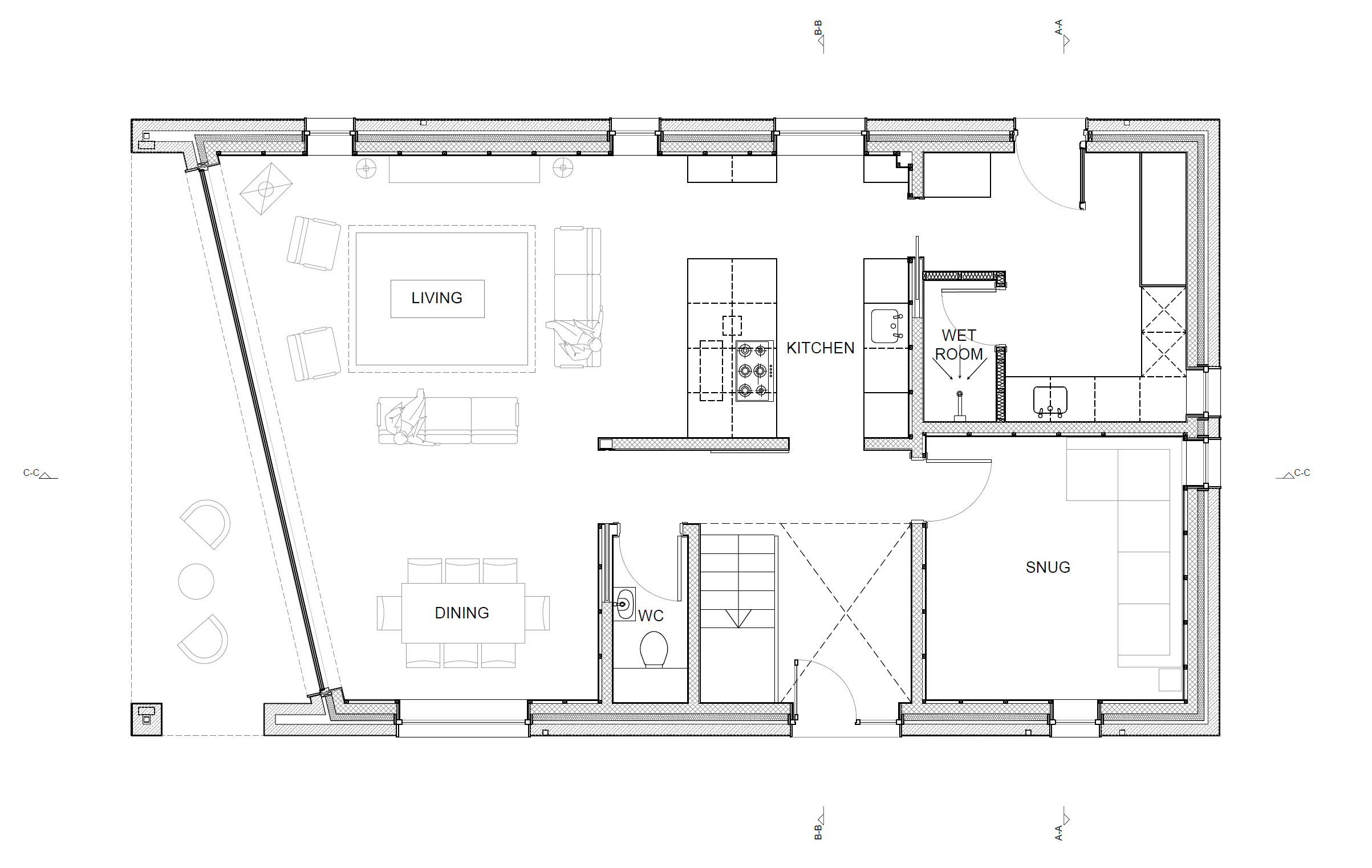
Whitestake, Preston is a small village situated between Farington Moss and New Longton and is firmly routed within the Greenbelt which has therefore meant that development has previously been hard to achieve. The site is owned by a family that have long ties to Whitestake, all the families children have grown up in the existing property, we were approached to explore the opportunities for each of the 3 Children to build their own house within the grounds of the existing dwelling. This is therefore the first of three properties. For this property we proposed the replacement of an existing barn that had been used for storage to create a Eco Home that reflected the existing rural context and had no greater impact on the openness and character of the surrounding village and countryside than the existing buildings. We worked closely with the client to design a scheme which satisfied their accommodation requirements for their ‘forever home’, while respecting the context and scale. We produced a 3D walkthrough of the proposed designs so that the client could understand each space and how the completed building would look and feel. We produced a detailed planning application and following positive comments from the planning officer we received approval within 6 weeks of submission. This is an extremely rare accomplishment, considering this was the first application (it can sometimes take several applications and resubmissions incorporating the planning officers comments) and the standard timeframe for a decision is usually 8 weeks, and can be longer. Our client for this project wished to create a self build eco home situated within the grounds of the existing family home. We worked closely with the applicants to design a scheme which satisfies their accommodation requirements for their ‘forever home’; creating a home which reflects the rural context; whilst minimising the impact on the openness, and character on the surrounding village and countryside.