Log in to access exclusive content, membership benefits and update your details. You can find your RIBA Membership number on your membership card.
Not a member? Join the RIBA
Don't have a login? Create a web account
Waltham Forest

£0.5m to £0.99M
Urban Habitat Studio , 20 Carr Road , London , Greater London , E17 5EN , United Kingdom
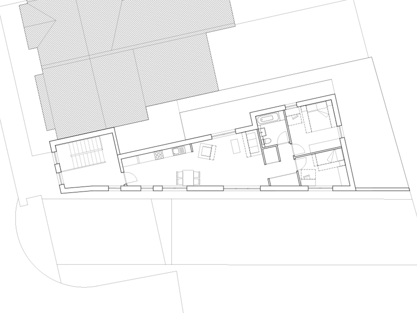
We provided a full architectural service for this private developer project. The site is a left-over piece of land owned by the adjacent terrace but disused. It is bounded by an undergroud line to the west and an overground line to the north bounding the northern edge of the site with a viaduct and carpark. The proposed building overlooks the street and carpark area bookending the terrace and completing the terrace with a unique end of terrace apartment building.