Log in to access exclusive content, membership benefits and update your details. You can find your RIBA Membership number on your membership card.
Not a member? Join the RIBA
Don't have a login? Create a web account
Waltham Forest

£250,000 to £499,999
Urban Habitat Studio , 20 Carr Road , London , Greater London , E17 5EN , United Kingdom
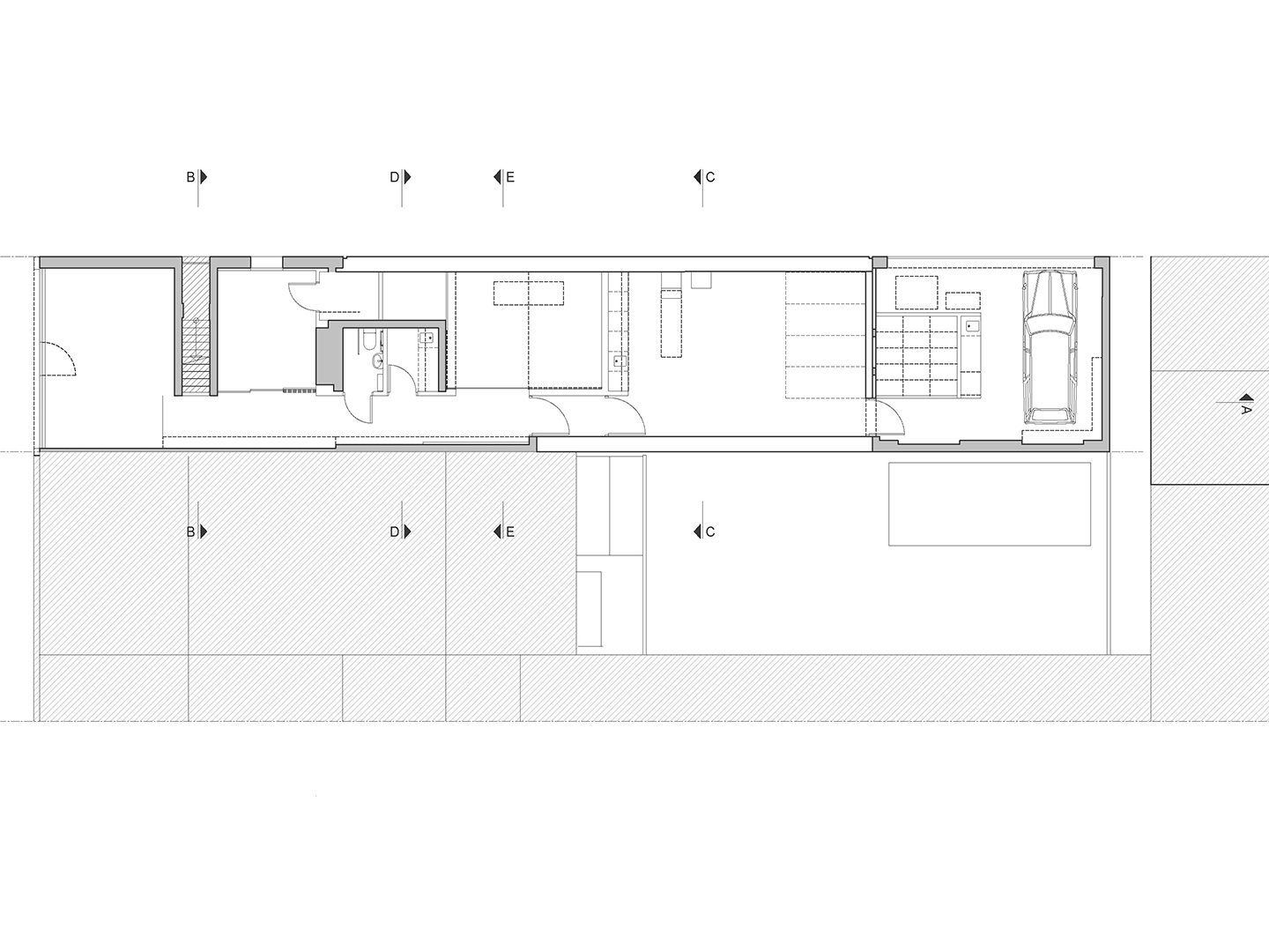
Harold White Funeral Directors has been trading in the London Borough of Waltham Forest since 1888, and at the Chingford premises since the early 1970’s. Urban Habitat Studio was commissioned to provide a full architectural service, creating a new vision for the business reconfiguring the internal layouts to accommodate a reception area, office and arranging room, ceremony hall/chapel of rest, mortuary, ambulance area, garage storage and utility area. Proposals included a new boutique shopfront and side elevation. Planning was submitted mid-2025 and Tender documents produced; construction stages will commence early 2026.