Log in to access exclusive content, membership benefits and update your details. You can find your RIBA Membership number on your membership card.
Not a member? Join the RIBA
Don't have a login? Create a web account
Hackney

£100,000 to £249,999
Urban Habitat Studio , 20 Carr Road , London , Greater London , E17 5EN , United Kingdom
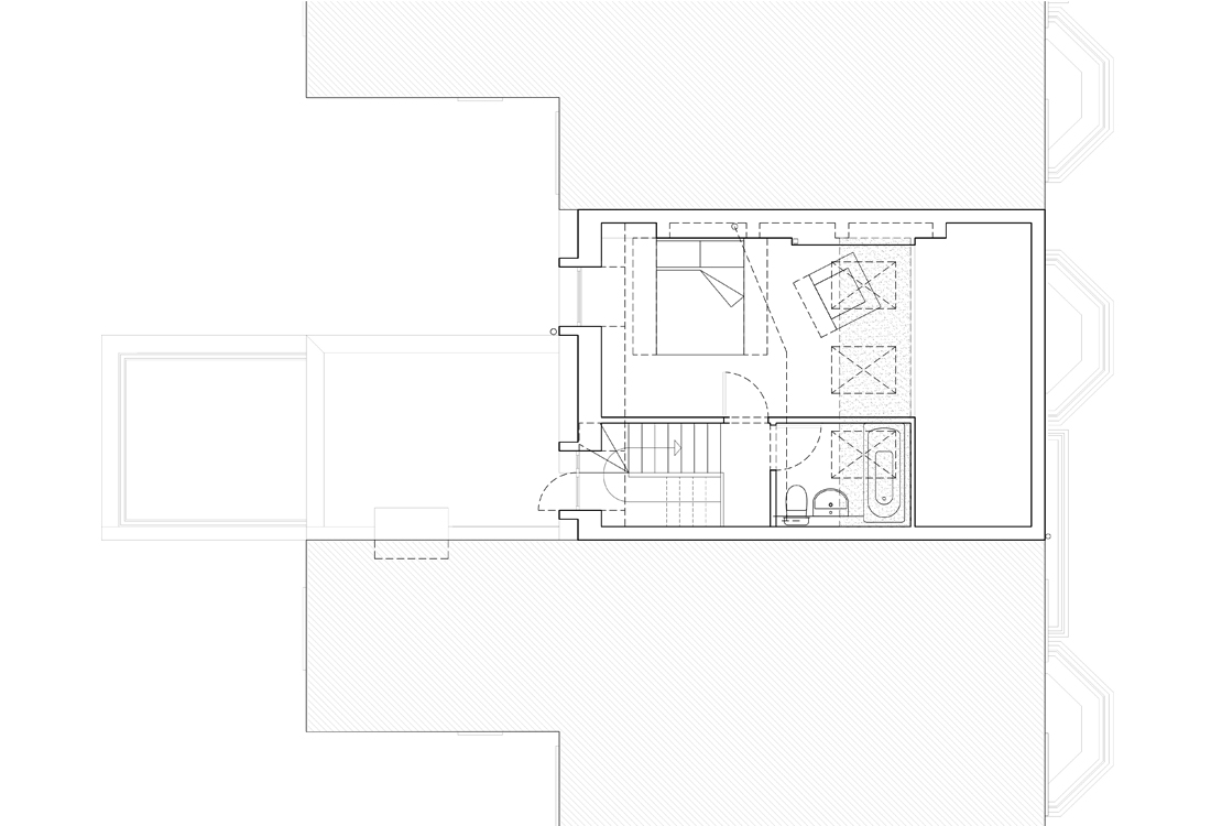
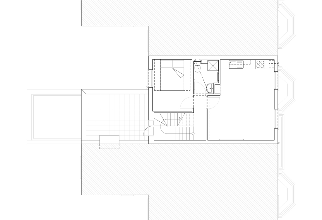
A refurbishment project for the reconfiguration and attic extension to a top floor apartment, located within a Victorian townhouse close to Clissiold park and adjacent conservation areas in Stoke Newington, North London. The split level top floor apartment is distributed over 3 half-levels, the proposals include the attic as a half level extension adding a 4th floor. The proposals involve upgrading and reconfiguring all levels including a roof terrace with a new room with ensuite bathroom in the attic.