Log in to access exclusive content, membership benefits and update your details. You can find your RIBA Membership number on your membership card.
Not a member? Join the RIBA
Don't have a login? Create a web account
Ealing

£0.5m to £0.99M
Alteration to existing property
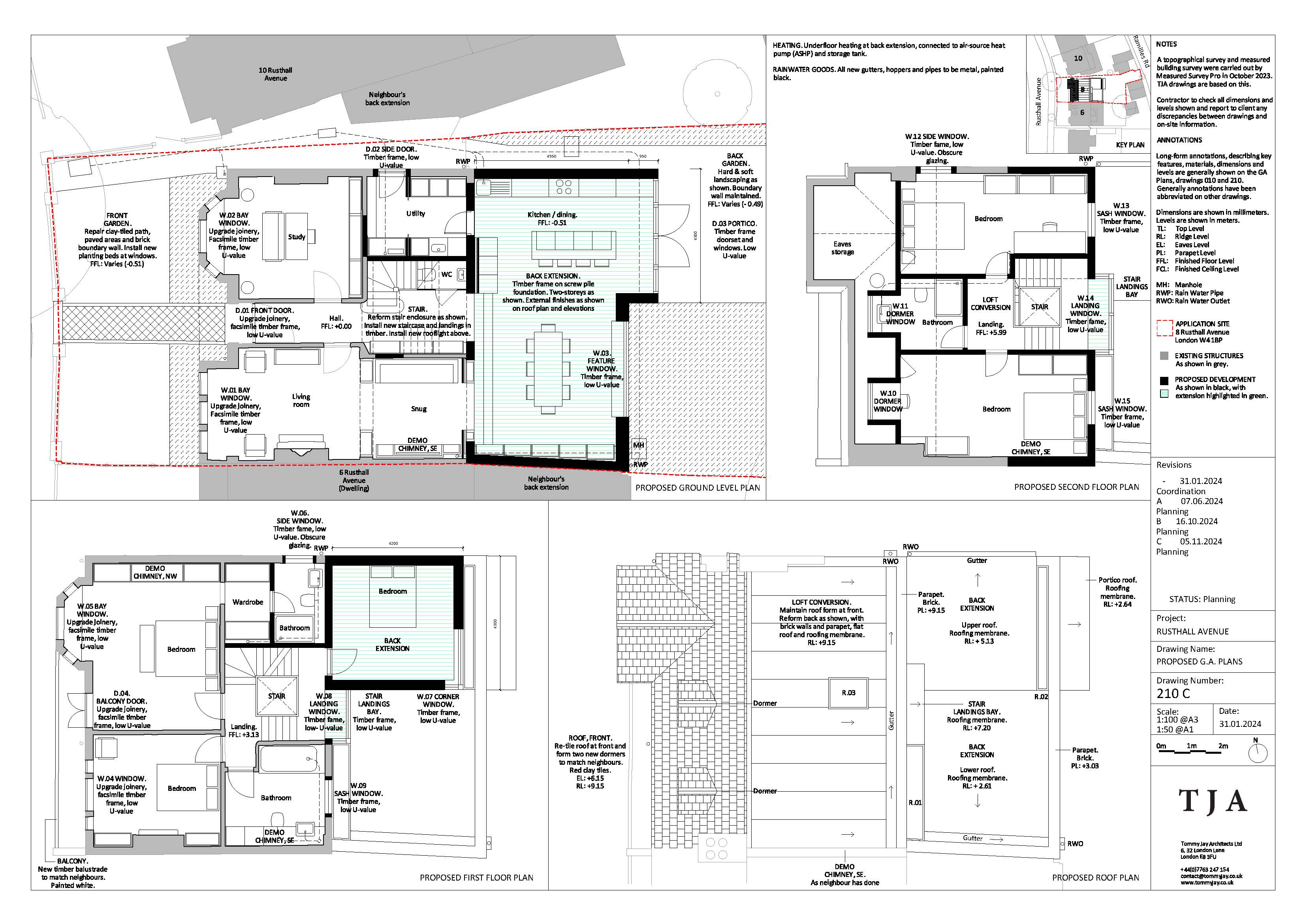
The project, located in Chiswick, London, is currently at tender stage. TJA are providing full architectural services encompassing RIBA work stages 1-5. The estimated project construction value is £750k. The house has been largely unaltered since it was built around the end of the 19th century. Challenges to overcome include thin brick walls, single glazed windows and an outrigger that inhibits the house's connection with its back garden. The various opportunities identified include capacity for a significant loft conversion, planning precedent for remodelling the outrigger and the chance to improve energy efficiency throughout. Inspiration was sought from the nearby Bedford Park estate, which pioneered the Garden City Movement in the early twentieth century. As an approach to town planning, which sought to marry the best things about urban life with the best things about rural life, we were interested in how this could apply at the scale of a house’s design in the twenty-first century. Our design features a timber-framed back extension across the full width of the house at ground floor level. This enables the house to engage the back garden with a new kitchen and dining space. Above this is a new bedroom, formed to the side to allow light into the central stairway. The stairway is widened to create a welcoming entrance hall, featuring a new staircase with bay windows on each landing and a rooflight above. A loft conversion provides two additional bedrooms and a bathroom. The existing building envelope will undergo a retrofit of ground insulation, roof insulation and window upgrades – all to be timber-framed, facsimile sash windows. The back extension and loft conversion will achieve new-build energy efficiency levels. Junctions between new and old will be carefully coordinated to control ventilation, movement and insulation. Other features include a green roof, air-source heat-pump and underfloor heating.