Log in to access exclusive content, membership benefits and update your details. You can find your RIBA Membership number on your membership card.
Not a member? Join the RIBA
Don't have a login? Create a web account

£100,000 to £249,999
Alteration to existing property
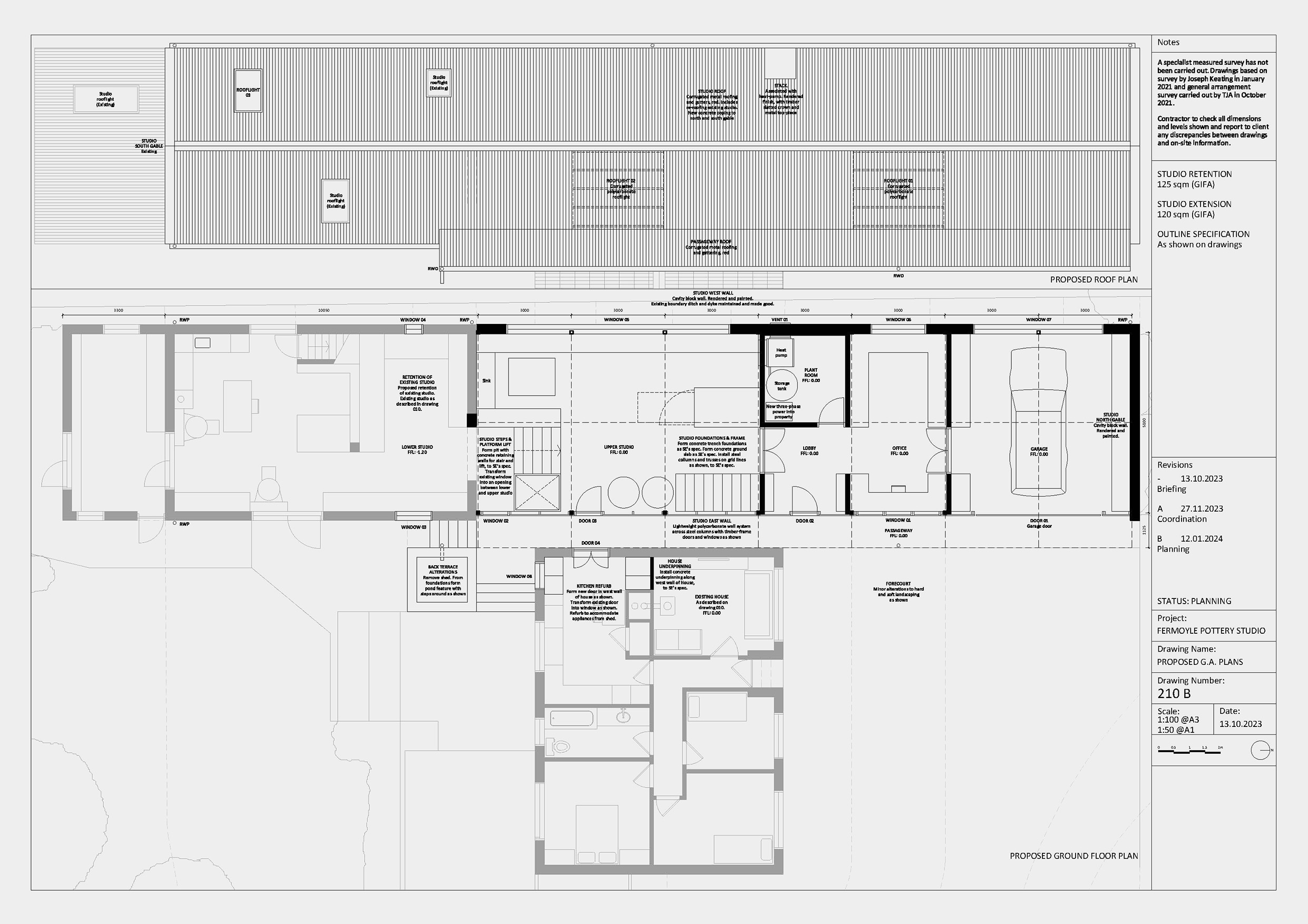
Located in Ballinskelligs, Kerry, This project is currently in planning stage. TJA is providing full architectural services for RIBA work stages 1 - 5. The construction cost estimate is £250k. The brief outlines the expansion for a low-energy ceramics studio, followed by refurb and extension of adjoining bungalow, located between a big hill and a big bay in rural Kerry. In response, TJA have designed a masterplan of phased development for the site. This coordinates the needs of their booming ceramics business with the needs of their growing family, as well as those of the natural landscape around them - drawing on the principles of permaculture. We then coordinated input from a structural engineer, energy consultant and self-build expert. Ground works will limit impact on tree roots and ground water. Warmth from the kiln room will be used to heat water for the whole property. The architecture is designed to make use of readily available skills and materials, such as straw, cob and agricultural roofing systems. Phase one has been submitted for planning permission while later phases continue to be designed.