Log in to access exclusive content, membership benefits and update your details. You can find your RIBA Membership number on your membership card.
Not a member? Join the RIBA
Don't have a login? Create a web account
Bristol

£50,000 to £99,999
Alteration to existing property, Listed Building - Grade II, Within a Conservation Area
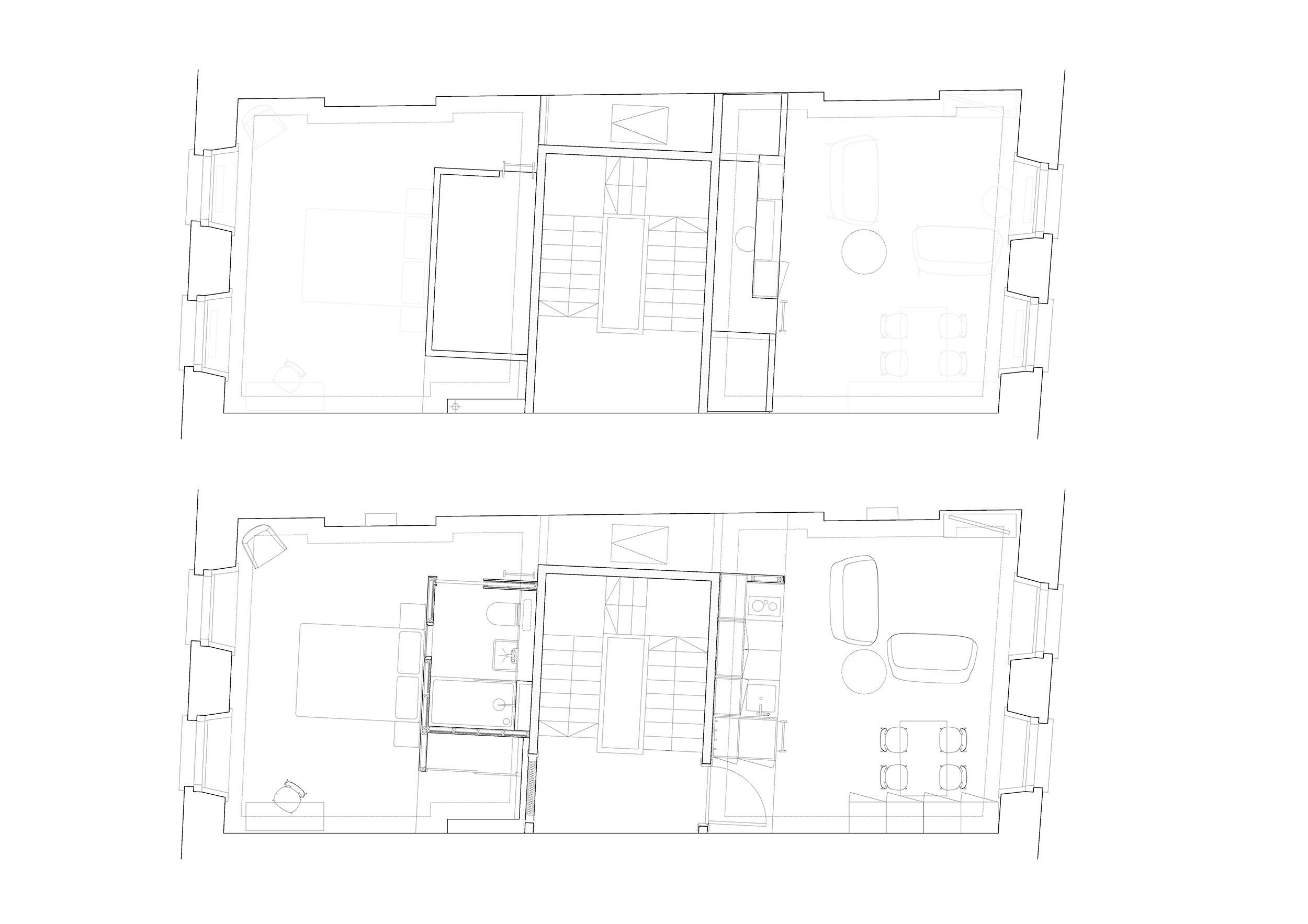
This scheme, at a Grade II listed property in Bristol, removes a number of ill thought out changes to restore the original large proportions of what was once a purpose built office building. A calm and soothing environment has been created for this home using a palette of natural materials and finishes in a contemporary way in contrast the historic building. Highlights of colour have been introduced through the kitchen, bathroom tiles, and furniture. New bespoke joinery pods have been carefully inserted back into the building provide a shower room, dressing area and kitchen. To maximise space within the flat the pods were designed to be accessed on all sides with storage cupboards and deep drawers to hide the everyday appliances and storage needs of daily life. The lid of the pods has been used for a home office over the kitchen and for an additional guest sleeping area on top of the shower room.