Log in to access exclusive content, membership benefits and update your details. You can find your RIBA Membership number on your membership card.
Not a member? Join the RIBA
Don't have a login? Create a web account
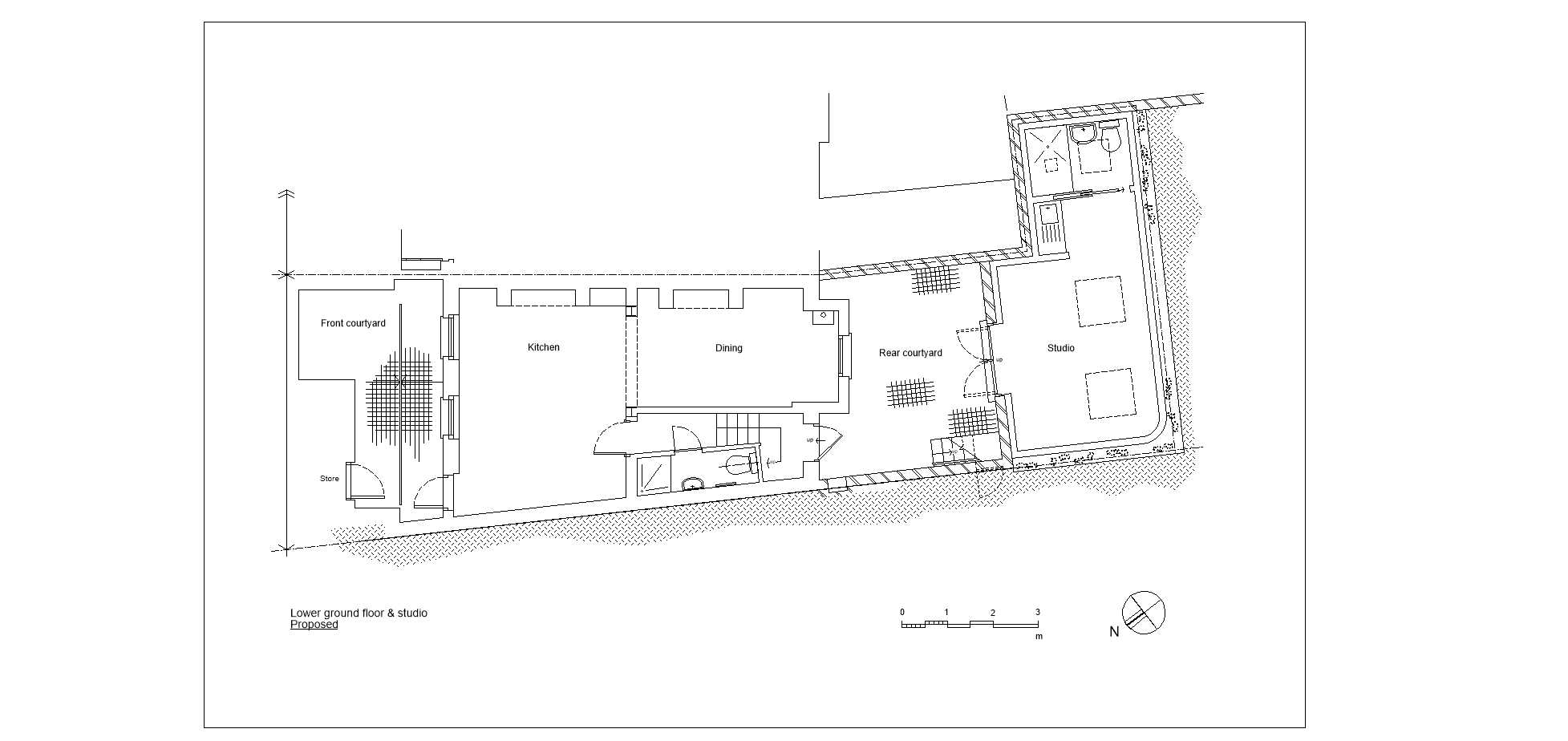
Southwark

£250,000 to £499,999
Alteration to existing property, Listed Building - Grade II, Within a Conservation Area
Structural alterations and full internal refurbishment of late Georgian listed terrace house. Creation of new self-contained studio to rear of house, on site of former garage, and connecting courtyard.