Log in to access exclusive content, membership benefits and update your details. You can find your RIBA Membership number on your membership card.
Not a member? Join the RIBA
Don't have a login? Create a web account
Lambeth

£100,000 to £249,999
Within a Conservation Area, Listed Building - Grade II
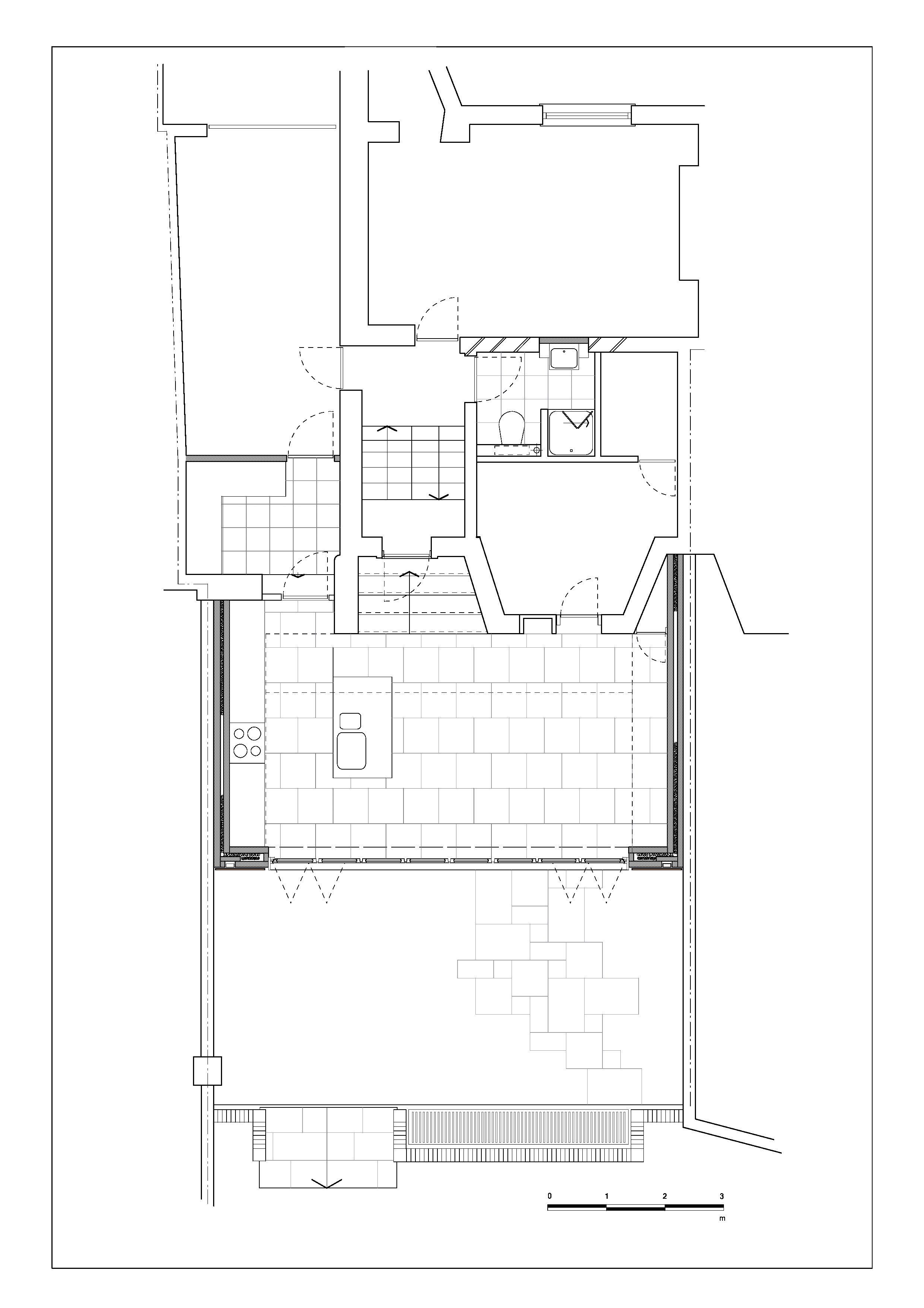
Extension and refurbishment of grade 2 listed late Georgian terrace house in south London.