Log in to access exclusive content, membership benefits and update your details. You can find your RIBA Membership number on your membership card.
Not a member? Join the RIBA
Don't have a login? Create a web account
Tower Hamlets

£100,000 to £249,999
Alteration to existing property, Listed Building - Grade II, Within a Conservation Area
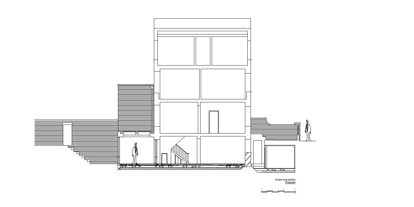
Rear extension and major internal alterations to grade 2 listed late Georgian terrace house.