Log in to access exclusive content, membership benefits and update your details. You can find your RIBA Membership number on your membership card.
Not a member? Join the RIBA
Don't have a login? Create a web account
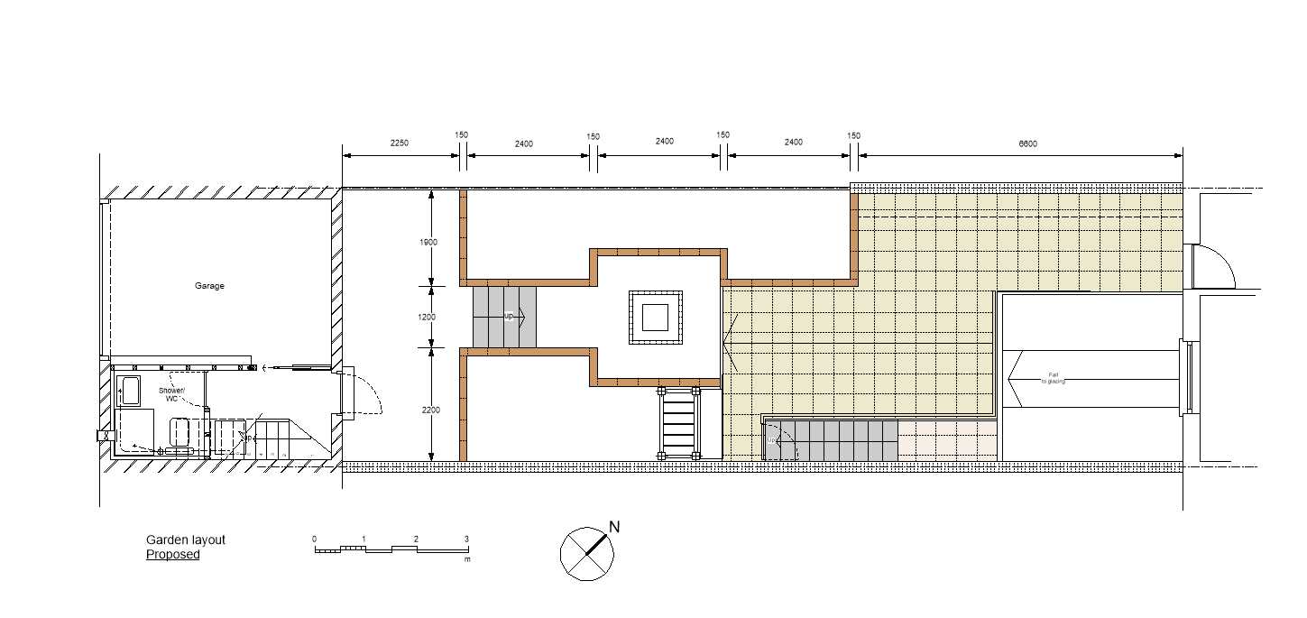
Greenwich

£100,000 to £249,999
Within a Conservation Area, Listed Building - Grade II
Rebuild of a listed 2 storey Victorian mews coach house in Greenwich. Conversion to home office/studio with kitchenette and separate shower room. Landscaping to garden. Extensive repairs to existing walls and rebuilt walls constructed of second hand London stocks in lime mortar.