Log in to access exclusive content, membership benefits and update your details. You can find your RIBA Membership number on your membership card.
Not a member? Join the RIBA
Don't have a login? Create a web account
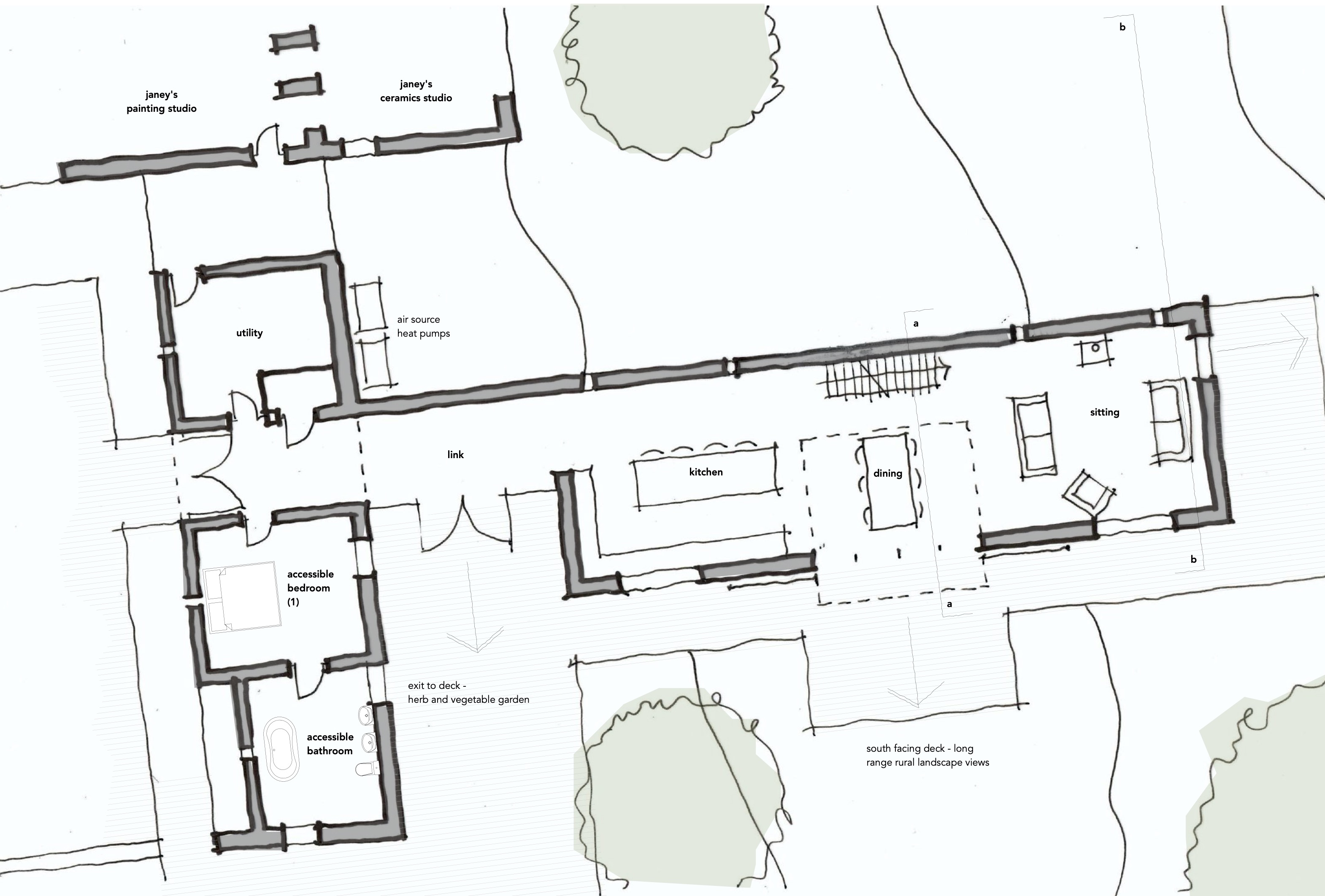
Herefordshire

Alteration to existing property, Sited in SSSI area
Concept project exploring the possibility of extending and repurposing an existing rural barn conversion to provide studio space and accessible living accommodation for the occupants. The design process involved a thorough site and building analysis exercise, considering sun path, topography, views, massing and materiality. The arrival sequence leads one into a re-imagined farm courtyard, with a transition of spaces from the cellular and enclosed compartments of the existing single storey building to the expansive and open character of the new living wing, link detached from the historic strructure.