Log in to access exclusive content, membership benefits and update your details. You can find your RIBA Membership number on your membership card.
Not a member? Join the RIBA
Don't have a login? Create a web account
Wiltshire

£100,000 to £249,999
Spiders Barn, Cross Keys , CORSHAM , Wiltshire , SN13 0DT , United Kingdom
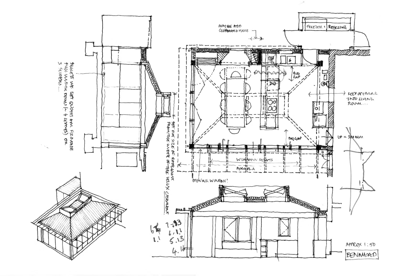
The regeneration focused on a coffered timber structure that would become the focal point for the family's daily life at the house. Using douglas fir as a reference point, the exposed timber structure is complimented by deep-reveals to windows and large fully-glazed sliding screens, right down to the bespoke kitchen's finger plates and shelving. Externally, the chestnut cladding will gradually age and silver, which will then sit comfortably with the zinc-clad roof.