Log in to access exclusive content, membership benefits and update your details. You can find your RIBA Membership number on your membership card.
Not a member? Join the RIBA
Don't have a login? Create a web account
Stratford on Avon

£1m to £1.99M
Brownfield site, Sited in Greenbelt land
Pentelowes Barn , Fosse Way , Hunningham , LEAMINGTON SPA , Warwickshire , CV33 9EQ
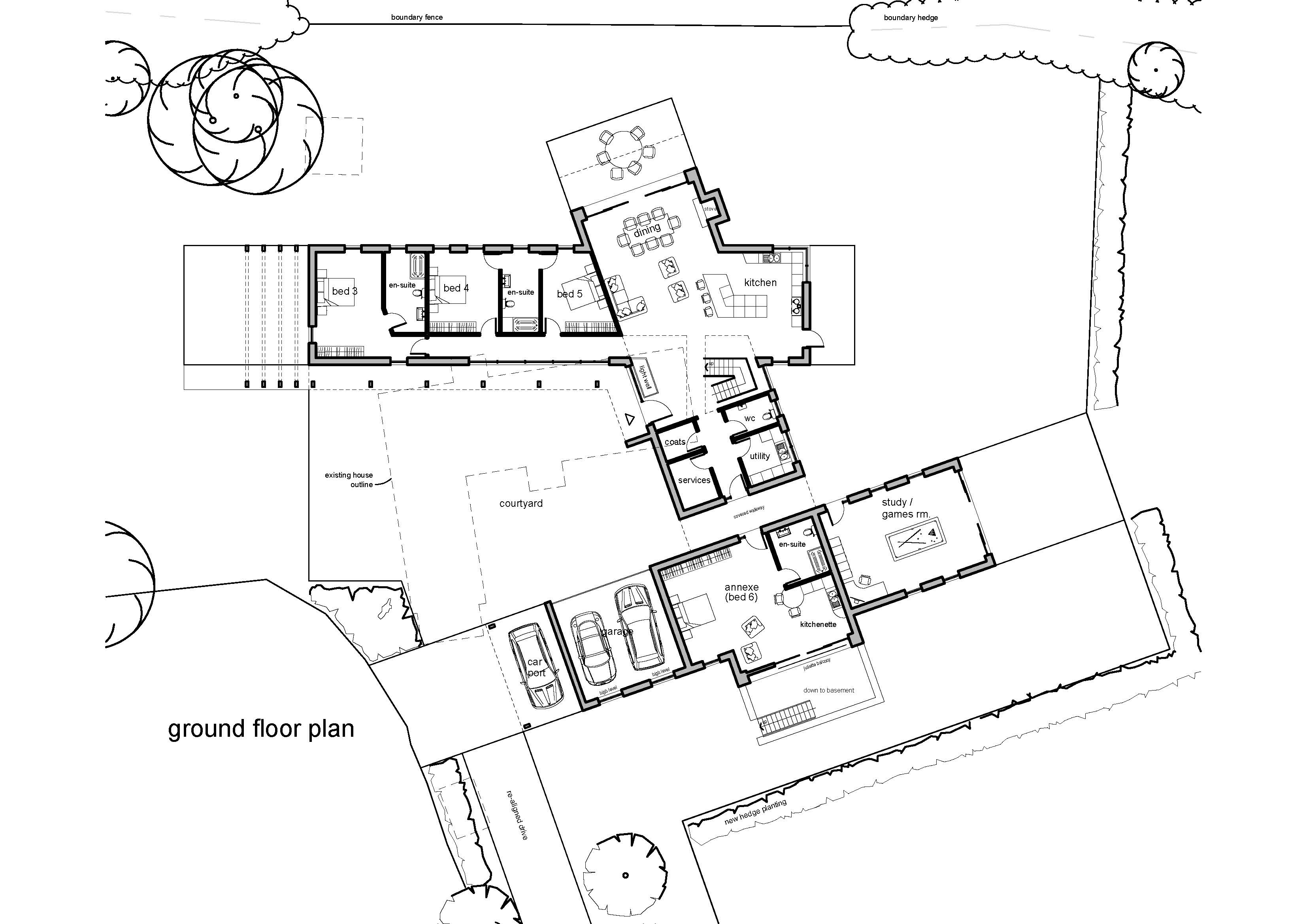
Replacement farmhouse within Warwickshire open countryside. This contemporary design was developed specifically for the site following careful analysis of the existing buildings and the rural area. Design obtained full planning permission.