Log in to access exclusive content, membership benefits and update your details. You can find your RIBA Membership number on your membership card.
Not a member? Join the RIBA
Don't have a login? Create a web account
Mid Sussex

£50,000 to £99,999
Alteration to existing property
Jonathan Talley Architects Limited
16 Coniston Avenue , HAYWARDS HEATH , West Sussex , RH17 5LF
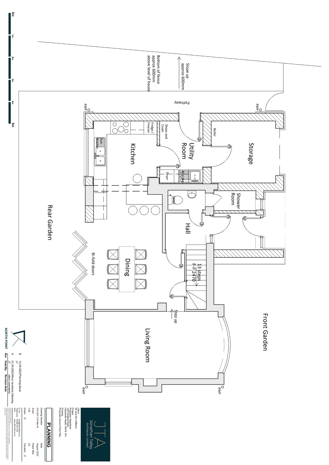
JTA were appointed to provide a measured survey and feasibility options leading to a final design ready to take to the Local Authority for planning approval. The proposal consisted of a two storey side extension with internal alterations to create a large kitchen / dining / entertaining space and a master suite to the first floor. The project is based in Haywards Heath, Mid-Sussex. The project has been submitted to the Local Authority for approval.