Log in to access exclusive content, membership benefits and update your details. You can find your RIBA Membership number on your membership card.
Not a member? Join the RIBA
Don't have a login? Create a web account
Mid Sussex

£20,000 to £49,999
Alteration to existing property
Jonathan Talley Architects Limited
16 Coniston Avenue , HAYWARDS HEATH , West Sussex , RH17 5LF
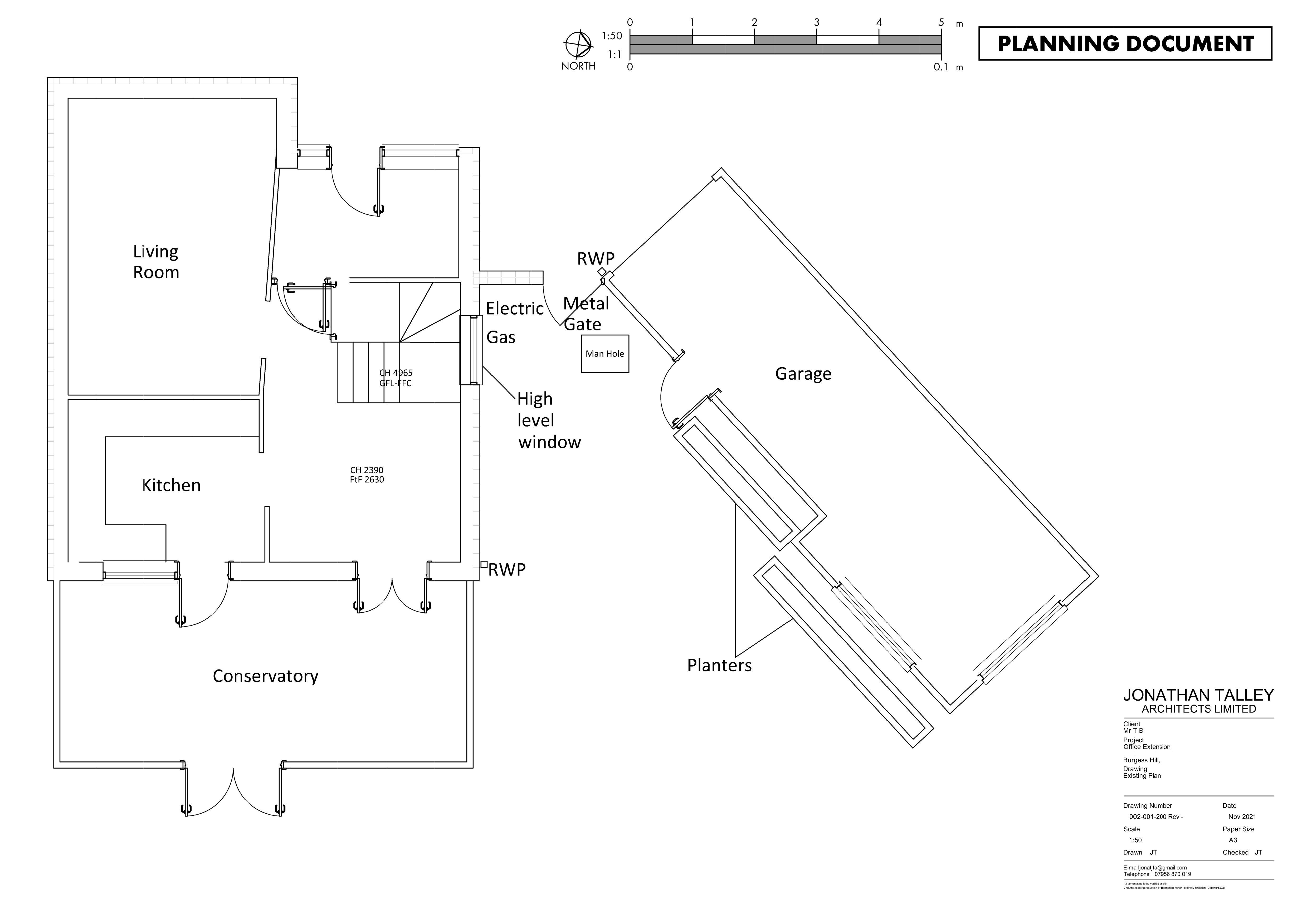
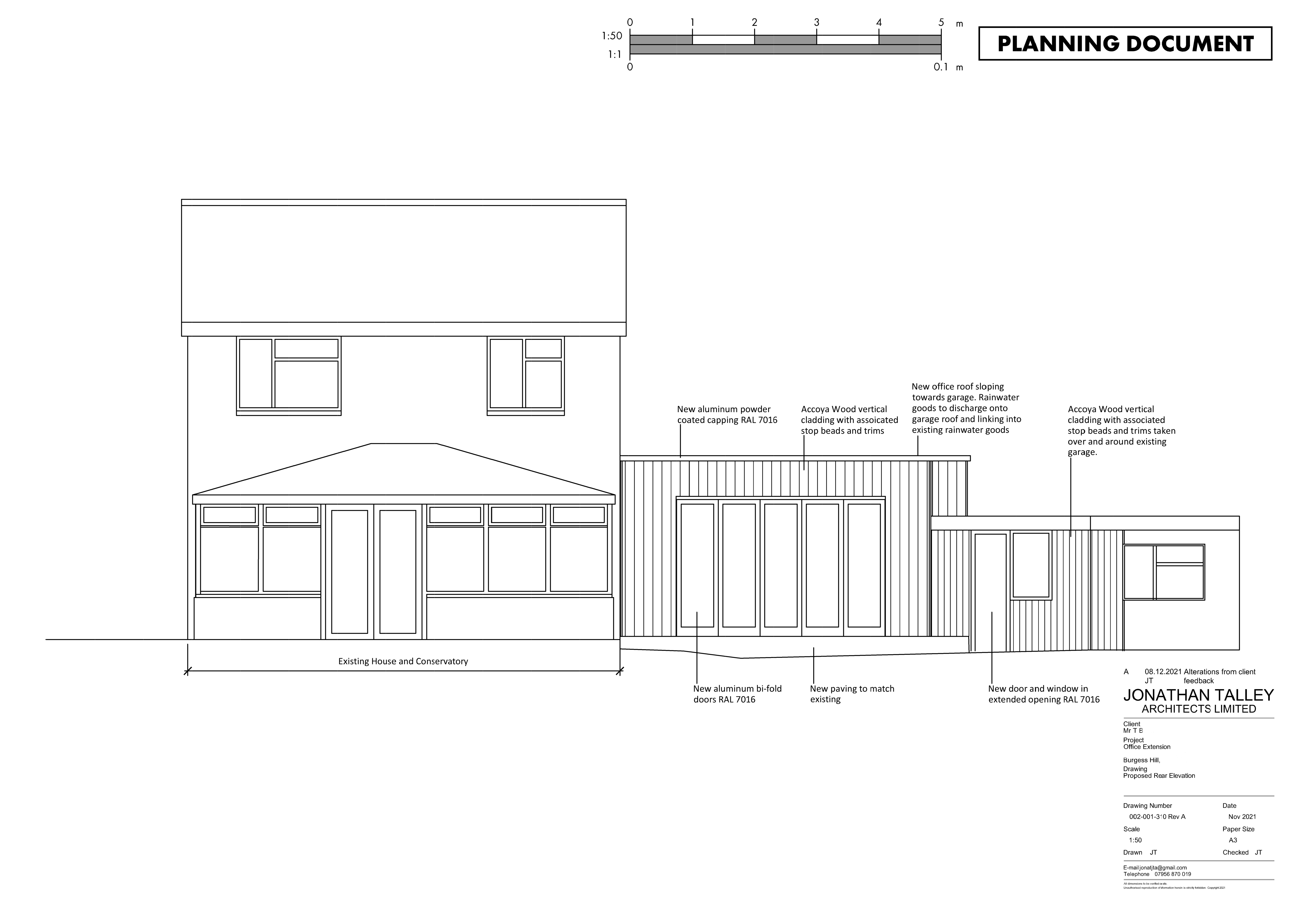
The client approached Jonathan Talley Architects Limited to provide architectural services to gain planning approval for an extension to their existing home based in Burgess Hill. The extension was proposed to be for a home office, which would then also be used in the future as a garden room looking out onto the garden. JTA undertook a survey of the existing house and garden area and returned a series of concepts for review with the client. Upon selection the design was developed to a suitable pack of drawings to be submitted to Mid-Sussex Council for a householder Application. This application was approved with minimal conditions, well within the statutory timeframes enabling the works to progress sooner. The next stage of the project is being discussed.