Log in to access exclusive content, membership benefits and update your details. You can find your RIBA Membership number on your membership card.
Not a member? Join the RIBA
Don't have a login? Create a web account
Bristol

£50,000 to £99,999
Alteration to existing property, Within a Conservation Area
1A Bramley Close , Woodford Green , Essex , IG8 7PL , United Kingdom
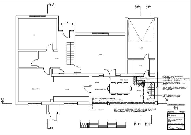
The project focused on an existing dormer bungalow in Wiltshire with beautiful rural views. A family of 4 needed more bedroom space urgently. Using the existing loft bedrooms a new ceiling was built across the lean-to conservatory. This became the floor plate to an existing loft bedroom whose floor plan doubled by expanding southwards. The new floor plate also created a small and secluded office accessed via reconfigured stairs. The entire roof was thermally upgraded and high performance windows inserted. Neighbour's objections to overlooking meant that a series of clerestory windows which allowed light but no views were agreed with the Local Authority. To compensate for this triangular windows to the side of the new dormers allowed angled views of the roof-scape or country views. The reconfiguration also allowed for an enlarged bathroom. Previously there had been a tight shower room with angled ceiling that was both cramped and awkward. A new front dormer provided enough headroom and space for both a bath and shower. The roof extensions created 2 double bedrooms a family bathroom and new study.