Log in to access exclusive content, membership benefits and update your details. You can find your RIBA Membership number on your membership card.
Not a member? Join the RIBA
Don't have a login? Create a web account
Cornwall

£50,000 to £99,999
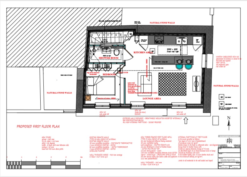
Listed Building - Grade II, Within a Conservation Area, Alteration to existing property
1A Bramley Close , Woodford Green , Essex , IG8 7PL , United Kingdom
The clients required a retreat for when they visited mainland UK. They had purchased a derelict garage that had been vandalised and set on fire. Despite its poor condition it is a curtilage listed building to the rear of an elegant Regency square. It had once been a coach house. The project included sensitive reuse of surviving granite walls by removal of cemetitious render and repointing in lime, the insertion of breathable internal insulation (woodfibre) and the replacement of a temporary roof with natural slate. The first floor became an open-plan 1 bed apartment with new structure where a new bathroom, lounge kitchen and bedroom are located. The ground floor is a workshop and garage. The external appearance has simple joinery fitting for its non-domestic origins. and location in a conservation area.