Log in to access exclusive content, membership benefits and update your details. You can find your RIBA Membership number on your membership card.
Not a member? Join the RIBA
Don't have a login? Create a web account
West Berkshire

14 Heathermount Gardens , Crowthorne , Berkshire , RG45 6HW , United Kingdom
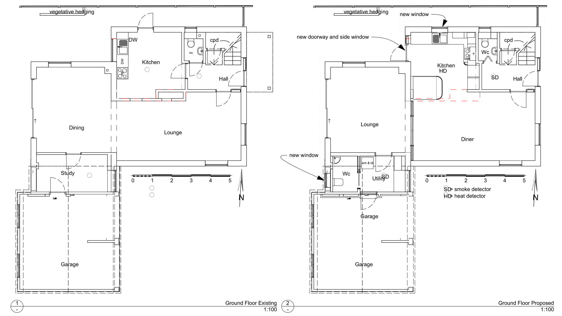
The project brief was to make better use and flow of the internal layout to provide for an open plan arrangement including new ground floor Shower Room and Utility Room. Fenestration alterations will provide for a private garden courtyard space leading from the Kitchen to the garden. A building information model [BIM] was provided to illustrate the effects of the open plan arrangement. Development Control and Building Control applications submitted and Utility Service Providers searches arranged and recorded.