Log in to access exclusive content, membership benefits and update your details. You can find your RIBA Membership number on your membership card.
Not a member? Join the RIBA
Don't have a login? Create a web account
Southwark

£0.5m to £0.99M
Listed Building - Grade II, Within a Conservation Area, Alteration to existing property
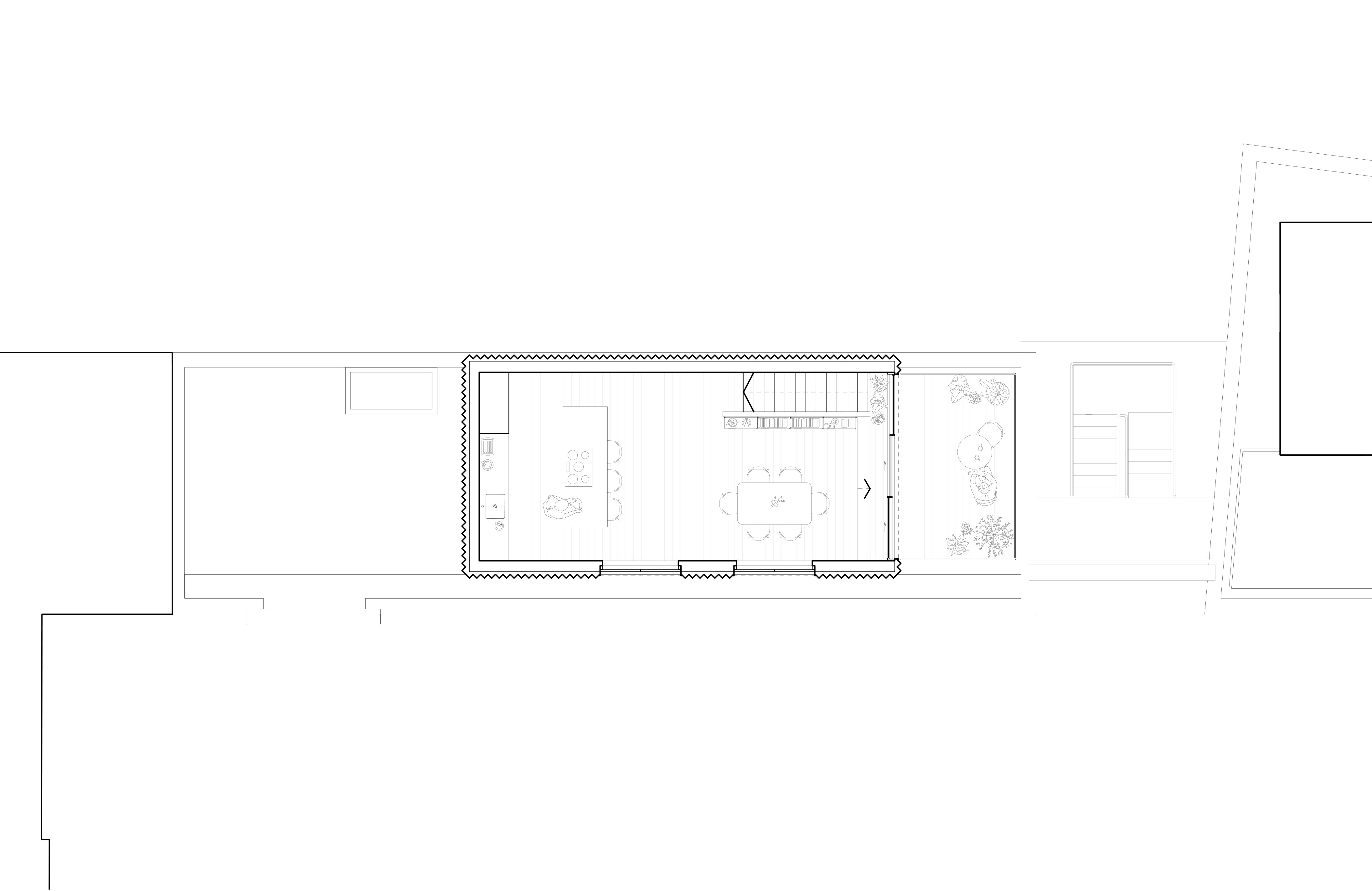
A rooftop extension within the Bermondsey Street Conservation Area, transforming a one-bedroom apartment into a three-bedroom family home. From one bed to forever home The existing apartment occupies the upper floor of the 400 building at Alaska Factory, a former sealskin processing complex on Grange Road in Bermondsey. The existing 79m² apartment offered one bedroom and an open-plan living space. Poorly configured and no room for a growing family. The owner had lived at the Alaska Factory site for many years and operating their business nearby. They approached us to transform this underused property into a permanent family home. Working with heritage constraints The main factory building was designed by Wallis, Gilbert and Partners in 1932, the architects behind the Hoover and Firestone factories on Great West Road and the site sits within the Bermondsey Street Conservation Area. Our research demonstrated that the 400 building, while included in the local listing, was constructed in the early 1990s as part of the site's conversion to residential use. This informed an approach that respects the setting of the genuine heritage assets while recognising the host building's modern origins. Two pre-applications, one refined design The planning argument was built up craefully through two pre-applicaiton submissions. Each round of feedback shaped the proposal: adapted the footprint, increased setback from the adjacent building, revised materials, and dded further privacy screening to the roof terrace. The project received planning consent March 2026. Minimal Intervention, Maximum Impact The roof extension provides an open-plan kitchen and dining space with natural light from east-facing windows and a rooflight along the western edge. A modest 10m² roof terrace faces north, away from the heritage building, screened with frosted glass guarding and planting. The existing first floor is reconfigured: two double bedrooms, one single, an en-suite, family bathroom, and living room. The final dwelling reaches 110m². Minimal materials White profiled metal cladding with a gloss finish creates visual interest through shadow play without competing with the render of the adjacent 600 building. The triangular profile adds texture and depth, while the white colour ensures the addition recedes against the backdrop of the Art Deco elevation behind. Minimal metal framed windows align vertically with those below, all finished in white to martch the cladding. The entire addition sits behind the existing parapet on three sides, visible only at oblique angles from within the complex itself.