Log in to access exclusive content, membership benefits and update your details. You can find your RIBA Membership number on your membership card.
Not a member? Join the RIBA
Don't have a login? Create a web account
Tower Hamlets

£250,000 to £499,999
Alteration to existing property, Brownfield site, New Build
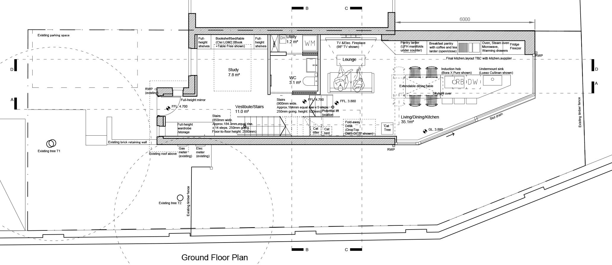
This project is a comprehensive extension and renovation of an end-of-terrace house in Limehouse, close to Canary Wharf. Our brief was to transform a modest property with low ceilings and limited daylight into a highly efficient, spacious and sustainable family home, designed to perform close to the Passivhaus EnerPHit Standard. The project began in early 2023 with a two-storey side extension and a 3-metre rear extension. Although planning permission was granted, the proposal was affected by an easement relating to a Transport for London retaining wall along the site boundary. After several months of negotiations, the design was redeveloped with a more compact footprint that avoids the easement while maintaining the ambition for a high-quality, low-energy home. We have now secured approval for a 6-metre rear extension through Prior Notification under permitted development rights and are progressing with the technical design. The extension forms a generous living/dining/kitchen space opening onto the south-facing garden through full-height sliding glazing. To create a sense of spaciousness with a higher ceiling, given the existing 2.3-metre ceiling height, part of the ground floor is lowered, creating a bright, tall and flexible heart of the home. The chamfered plan responds directly to the easement boundary, and the interior layout is arranged to maximise efficiency and intuitive flow within the constraints. Sustainability is embedded throughout. The scheme incorporates an air-source heat pump for heating and an MVHR system for ventilation based on Passivhaus principles. A green roof on the extension enhances biodiversity and reduces heat gain. The extension is highly insulated, and the existing fabric is upgraded with internal insulation. Triple glazing, carefully considered shading via retractable awnings, and south-facing solar access work together to ensure comfort across seasons. PV panels were also developed as part of the energy strategy, although these will be submitted separately for planning reasons. The project is expected to commence on site early next year.